0

Крышка угла внешнего бокового

Крышка угла внешнего бокового
Код товара: 017493
Кол-во
Информация о доставке

Доставка товара в пределах РФ осуществляется через Транспортные компании.

Стоимость и сроки доставки зависят от расстояния до Вашего объекта, массы и объема товаров, а так же от условий Транспортной компании.

Варианты оплаты

Оплата осуществляется безналичным способом, путем перечисления денежных средств на расчётный счет компании.

Описание
Характеристики
Крышка угла внешнего бокового
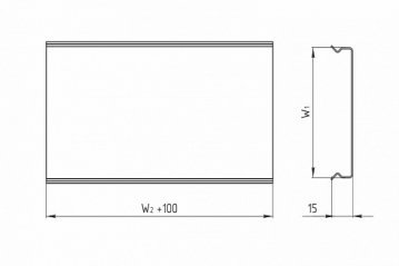
Крышка угла внешнего бокового используется для защиты кабеля и проводов в кабельных лотках от внешних воздействий. Крепится к углу простым нажатием до щелчка.

Тип замка для крышки - круглый.

Ширина W1, W2 = 50 / 100 / 150 / 200 / 300 / 400 / 500 / 600 мм.
Толщина металла = 0,7 мм

Артикулы

Ширина
W1, мм   
Ширина
W2, мм
Толщина
металла, мм
Масса, кг  Оцинкованная
сталь
50 50 0,7 0,08 CSTGOM.05.05.07
100    100 0,16 CSTGOM.10.10.07
150    150 0,28 CSTGOM.15.15.07
200    200   0,42 CSTGOM.20.20.07
300    300    0,78 CSTGOM.30.30.07   
400    400    1,26 CSTGOM.40.40.07   
500    500    1,85 CSTGOM.50.50.07
600    600    2,55 CSTGOM.60.60.07   

Изделие в других типоразмерах и исполнениях изготавливается на заказ.

Внимание! Цвет, характеристики и комплектация товаров, указанные на сайте, могут отличаться от реальных
Толщина металла, мм
0,7
Получите детальный расчет цены на ваш строительный объект. Используйте "Кабеленесущие системы" высокого качества. Детальную информацию можно получить в отделе продаж.
Комплексное снабжение строительных объектов
Подбор аналогов с полным соответствием характеристик товаров по проекту для экономии бюджета
Мы используем cookie для улучшения предоставляемых услуг и сбора статистических данных. Продолжая навигацию по сайту, вы соглашаетесь с правилами использования cookie